Nestucca
Nestucca
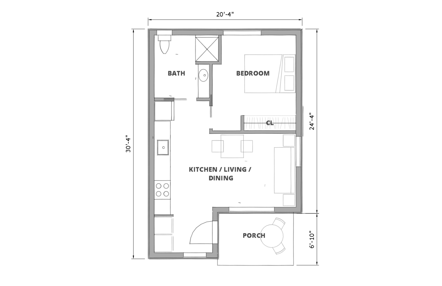
540 sq ft | 1 bedroom | 1 bathroom
This modest home allows for the opportunity to age in place as a single-story dwelling. This design is perfect for accessory units for a family member who is aging or with limited mobility. It can also be stacked to form a duplex.
Program highlights include:
- Single-level living, ADA compliant: age in place
- Covered porch
- Exterior storage for e-bikes and gear
- Zero-energy and solar panel ready (ready for DOE certification and 45L tax credit)
We can customize any standard design to your needs.
Interested in this design? Let’s have a conversation about your project.
540 sq ft | 1 bedroom | 1 bathroom
This modest home allows for the opportunity to age in place as a single-story dwelling. This design is perfect for accessory units for a family member who is aging or with limited mobility. It can also be stacked to form a duplex.
Program highlights include:
- Single-level living, ADA compliant: age in place
- Covered porch
- Exterior storage for e-bikes and gear
- Zero-energy and solar panel ready (ready for DOE certification and 45L tax credit)
We can customize any standard design to your needs.
Interested in this design? Let’s have a conversation about your project.





